Listing Tools

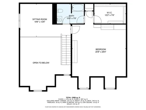
Welcome to 100 Hampton Meadows - The Drakeside Model. Discover effortless living in this meticulously maintained 2-bedroom, 2.5-bath freestanding condo with a 2-car garage. Step inside to a bright, open floor plan with vaulted ceilings and skylights that fill the space with natural light. The first-floor primary suite offers a private retreat with a custom walk-in closet and en-suite bath with soaking tub, double vanity with Natural Beech Cabinets and Quartz counters and walk in shower. The kitchen is a true showstopper with solid Canadian Red Birch Cabinets, Cambria Quartz countertops and stainless-steel appliances. The kitchen connects to a light filled Great Room with flat screen TV and surround sound. The sliding glass doors lead to your private deck with remote controlled awning-a perfect spot for outdoor relaxing. Ascend the stunning staircase to the upper level where you'll find a spacious guest bedroom, a full bath, and a loft area, ideal for a home office or reading lounge. Additional features include first floor laundry, 2-zone central air, and fully painted basement with generous storage and potential for future finishing. “HM” has resort-style amenities like a heated pool, tennis/pickleball courts, a beautiful clubhouse & community garden. Enjoy the active lifestyle or take a peaceful walk in the neighborhood. Located a short drive from the award-winning Hampton Beach, shopping, dining, and major highways, this location has it all.

Property Details of 100 Hampton Meadows

Map Location

Driving Directions

Broker Reciprocity 

Copyright 2025 PrimeMLS, Inc. All rights reserved. This information is deemed reliable, but not guaranteed. The data relating to real estate displayed on this display comes in part from the IDX Program of PrimeMLS. The information being provided is for consumers’ personal, non-commercial use and may not be used for any purpose other than to identify prospective properties consumers may be interested in purchasing. Data last updated November 6, 2025 6:37 PM EST

 

Hi there! How can we help you?

Contact us using the form below or give us a call.

Send Us A Message:

I agree to receive marketing and customer service calls and text messages from Parkway Realty. To opt out, you can reply 'stop' at any time or click the unsubscribe link in the emails. Consent is not a condition of purchase. Msg/data rates may apply. Msg frequency varies. Privacy Policy.

Do not fill in this field:

This site is protected by reCAPTCHA and the Google Privacy Policy and Terms of Service apply.

Hi there! How can we help you?

Contact us using the form below or give us a call.

Send Us A Message:

Do not fill in this field:

This site is protected by reCAPTCHA and the Google Privacy Policy and Terms of Service apply.

Hi there! How can we help you?

Contact us using the form below or give us a call.

Send Us A Message:

Do not fill in this field:

This site is protected by reCAPTCHA and the Google Privacy Policy and Terms of Service apply.

Do not fill in this field:

This site is protected by reCAPTCHA and the Google Privacy Policy and Terms of Service apply.

Do not fill in this field:

This site is protected by reCAPTCHA and the Google Privacy Policy and Terms of Service apply.

Do not fill in this field:

This site is protected by reCAPTCHA and the Google Privacy Policy and Terms of Service apply.

$

Do not fill in this field:

This site is protected by reCAPTCHA and the Google Privacy Policy and Terms of Service apply.